作品名称:凤栖客栈
作 者:赵玉文
项目地址:大理双廊
作品归属:设计系教师作品
设计说明:
大理双廊景区原住白族人家民宿客栈设计——凤栖客栈;业主自家的地,由政府统一规划提供建筑设计,业主自己建盖,室内建筑面积510平米。该项目结合建筑主体、大理一带空间设计风格并融入白族扎染布艺、木雕元素综合展开设计;星级酒店是”酒”,度假酒店是”咖啡”,而民宿就是”茶”,客栈有故事、有茶、有梧桐,您是凤凰,她就是凤凰栖息的好地方!

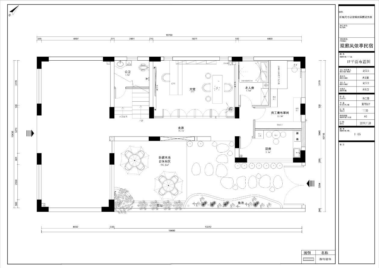
一层平面布局图

庭院入口效果图

庭院综合区域效果图

建筑外观效果图

室内入口借景效果图

一楼过道效果图

一楼大厅效果图01

一楼大厅效果图02

二层平面布局图

二楼过道效果图

二楼楼梯间效果图

201客房效果图

202客房效果图

203客房效果图01

203客房效果图02

204客房效果图01

204客房效果图02

205客房效果图

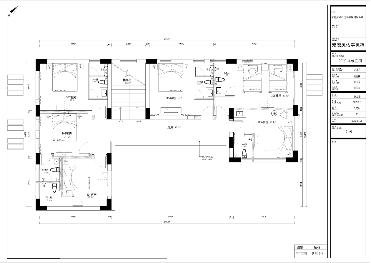
三层平面布局图

301客房效果图

302客房效果图

303客房效果图01

303客房效果图02

304客房效果图

305客房效果图

306客房效果图
↑ 上一篇:淘宝直播引领新时代 ——云南经济管理学院高职学院举办淘宝直播座谈会
↓ 下一篇:【创美艺传】艺术教育专业 管乐团排练
版权所有 © 云南经济管理学院-艺术与传媒学院 滇ICP备05007082号
Copyright 云南经济管理学院-艺术与传媒学院